Hur man kan rita en dörr med weldment
Jag fick en förfrågan av en kund att de ville göra en dörr så snabbt som möjligt i SOLIDWORKS. Kraven på dörren var att den skulle se bra ut för att kunna skicka en bild till kunden och ha en färdig ritning med kaplista, så det skulle gå snabbt för produktionen att tillverka den. Så jag började fundera lite på snabbaste sättet att göra detta. Kundens önskemål var att den skulle göras med olika skivmaterial som ofta låg på samma plats. Så jag började med att skapa några profiler i weldment som jag tänkte använda mig av. Profilerna låg ofta på samma plats så kunde jag redan i modellen lägga in offseten på profiler/skivorna så de hamnar rätt direkt i förhållande till weldmentprofilen.

Så nu är då grundarbetet klart så det enda jag behöver göra nu är att rita upp min dörrprofil och börja klä in den med de olika profilerna som jag vill använda och i och med att alla profiler ligger med rätt offset och rätt vinkel så kan jag bara återanvända samma dörrprofil för alla profilerna utan efterarbete för att få dom att hämna rätt. Efter en spegling av allt till andra sidan så är allt klart.



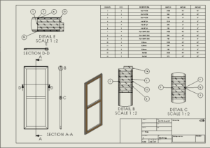
Då har vi en färdig modell att skicka till kunden. Här går det att lägga lite mer tid på att göra en snygg bild i Visualize för att kunna få det än snyggare om man vill det, men i detta fallet så var det tiden som man fick ut en fil den viktigaste så en snabb skärmbild för att kunna visa kunden hur man tänker. När det är klart så är det bara att göra en ritning på detta med kaplista och allt, detta på mindre än 5 minuter. Vill man göra en ändring så är det bara att flytta grundprofilerna så hänger allt med och du har en ny dörr på några sekunder.


