Mönsterskolan del 3.
I del 3 av mönsterskolan ska vi titta på en relativt nu funktion i Linear pattern. Med t ex cirkulära mönster har vi länge kunnat få våra instanser jämt fördelade m h a bocken Equal spacing. Dock har den möjligheten saknats för linjära mönster. Ta exemplet nedan. Säg att vi vill sprida ut instanser av det rektangulära hålet jämt fördelat över hela längden och att den sista instansen skall sitta lika långt från bortre kanten som den första sitter från den främre. Tidigare gick det inte att göra på ett enkelt sätt med Linear pattern men numer finns en funktion som gör just detta.

Vi börjar med ett vanligt Linear pattern där vi pekar ut en riktning samt anger vilken feature vi vill repetera.

Nu kommer det nya. Växla över från Spacing and instances till Up to reference och peka ut ändytan som referensen vi vill förhålla oss till.

Vi har två alternativ i kommandot. Antingen anger vi ett önskat avstånd mellan instanserna och får då antalet, eller så anger vi antalet och får avståndet. Vi vill ha det senare. Dock märker vi då att vi får ett problem. Den sista instansen sitter för långt ut. Förklaringen till det är att programmet som standard gör så att sista instansen sitter med sin mittpunkt precis på den valda referensen.

För att råda bot på detta växlar vi över från Centroid till Selected reference och pekar ut ett hörn på den första instansen. Nu kommer programmet hålla koll på den valda punkten istället för centrumpunkten. Vi ser också att den sista instansen nu slutar dikt an mot ändytan.

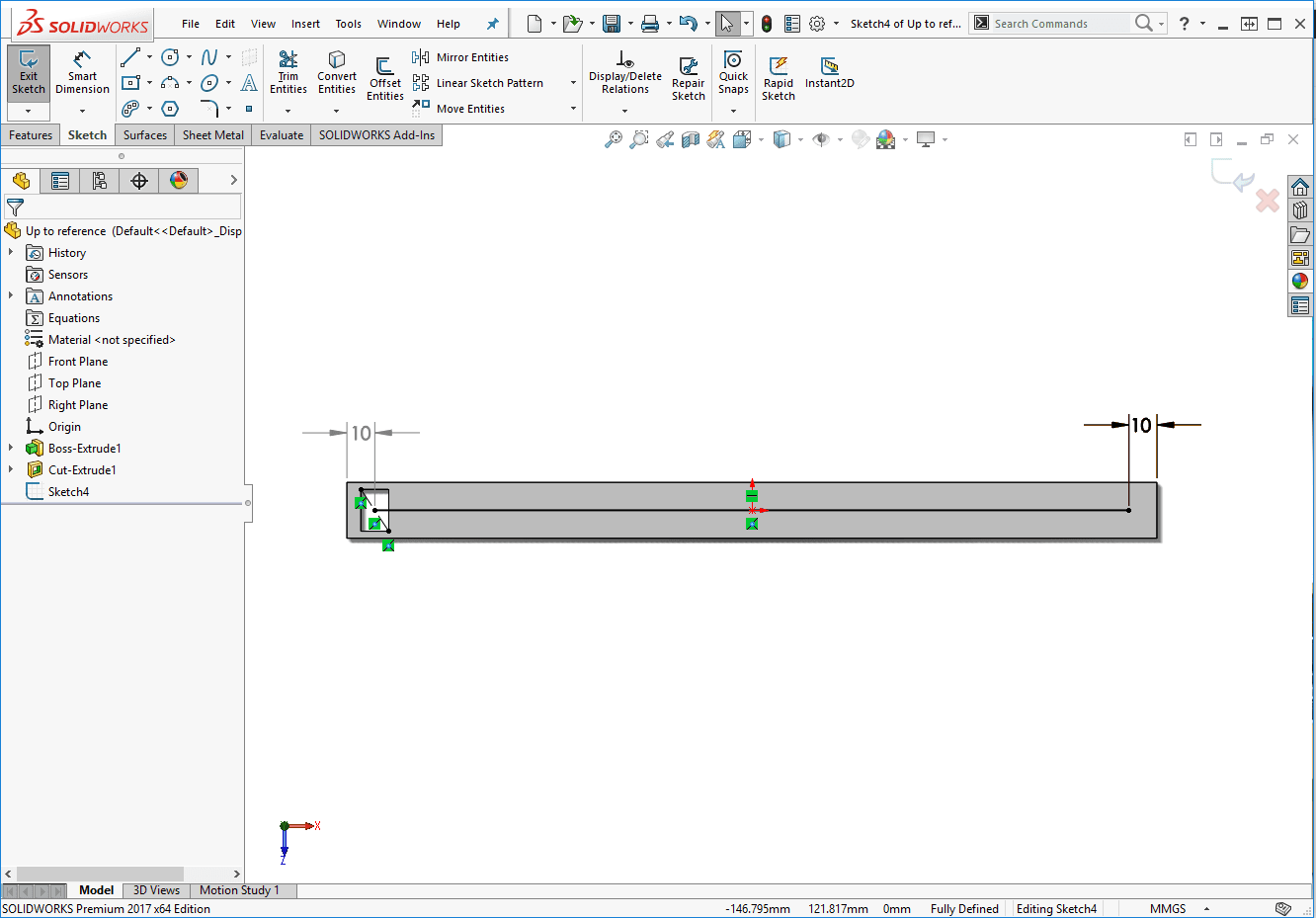
Sista steget blir att justera offset-avståndet så det matchar första instansen avstånd till sin kant.

Nu är vi klara och kan sola oss i glansen från vårt fina mönster. Ändrar vi ursprungsgeometrins längd ser vi hur snällt mönstret följer med och anpassar avståndet mellan instanserna.
Del 4 av Mönsterskolan publiceras måndagen den 5/12 klockan 08.00.
Ps.
Det finns ett annat sätt också att åstadkomma samma sak som ovan. Det bygger på ett Curve driven pattern. Börja med en skiss. Rita en linje som startar i centrum av det urspungliga hålet och slutar på samma avstånd.

Använd sen ett Curve driven pattern, med skissen som kurva. Ange antal och se till att Equal spacing är ibockat. Voilà!

Ds.
